Local Comercial en venta a 50m del Paseo Marítimo de Fuengirola – Gran potencial de inversión
- 395.000€
- 395.000€
Descripción
Local Comercial en venta a 50m del Paseo Marítimo de Fuengirola – Gran potencial de inversión
Oportunidad de inversión en una de las ubicaciones más cotizadas de Fuengirola: Calle Miguel Márquez, a solo 50 metros del Paseo Marítimo.
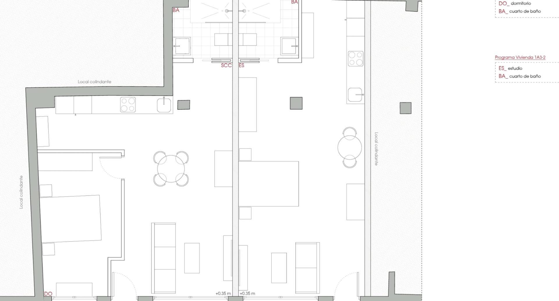
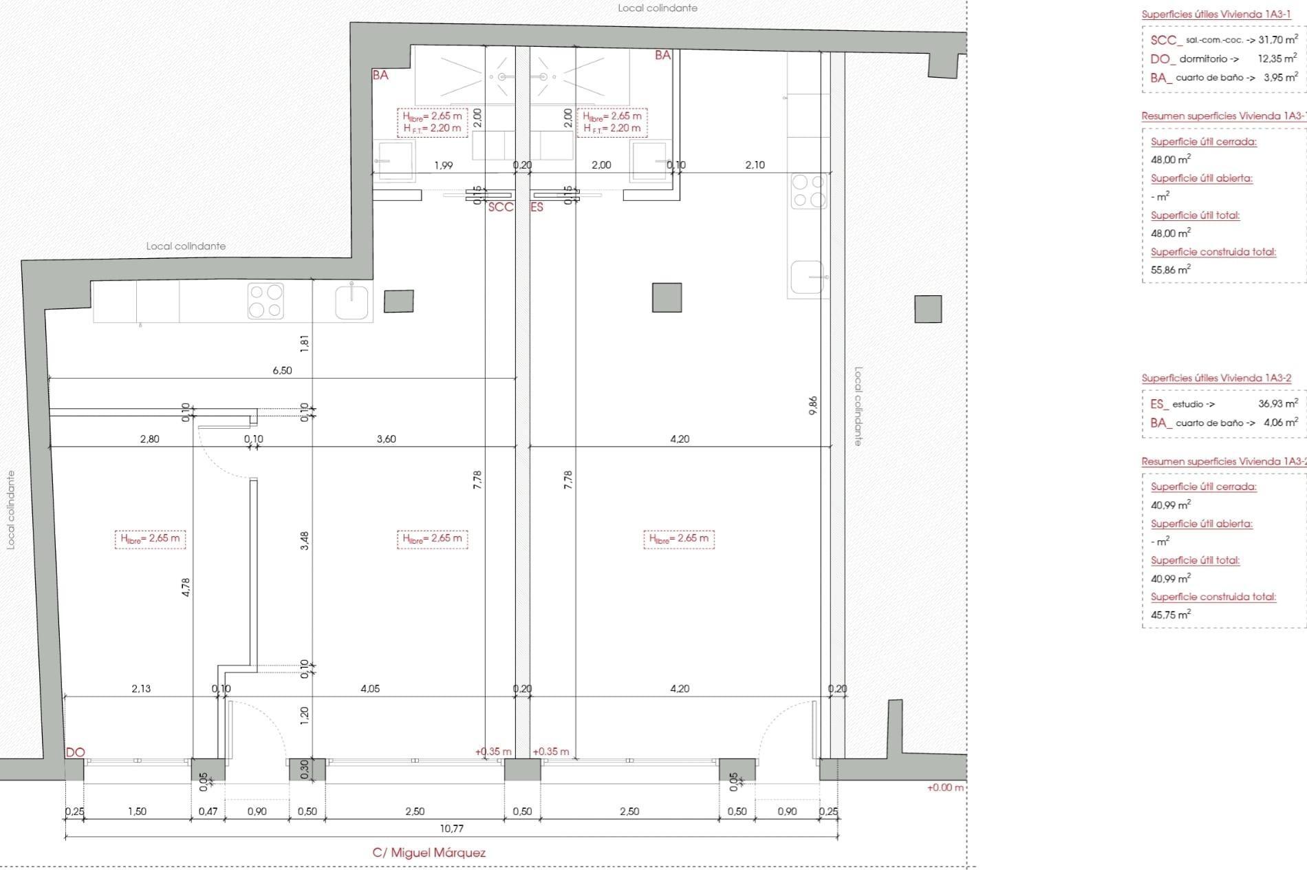
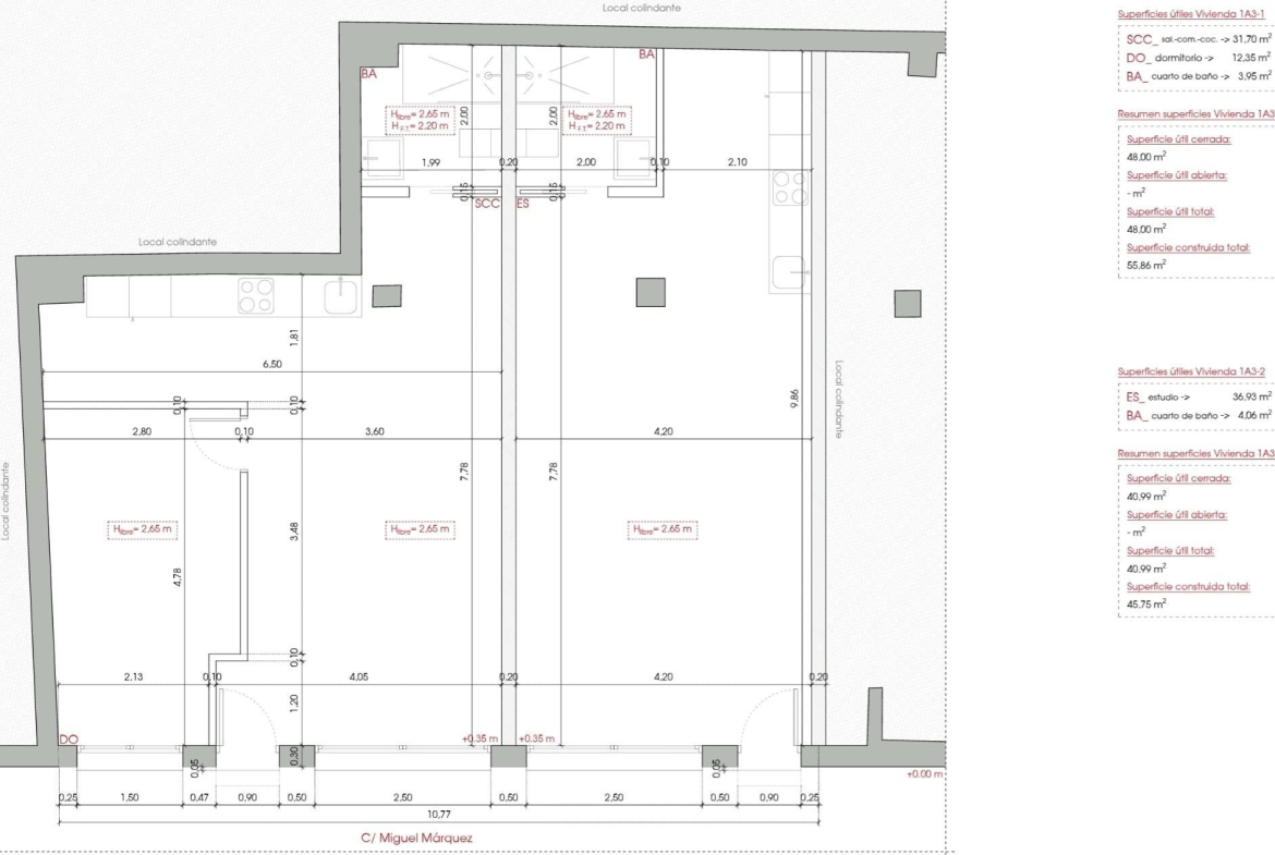
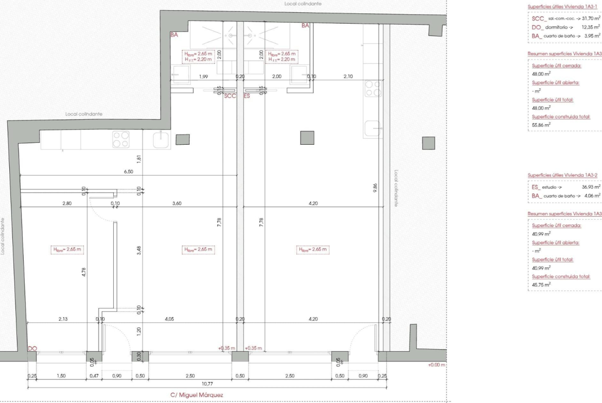
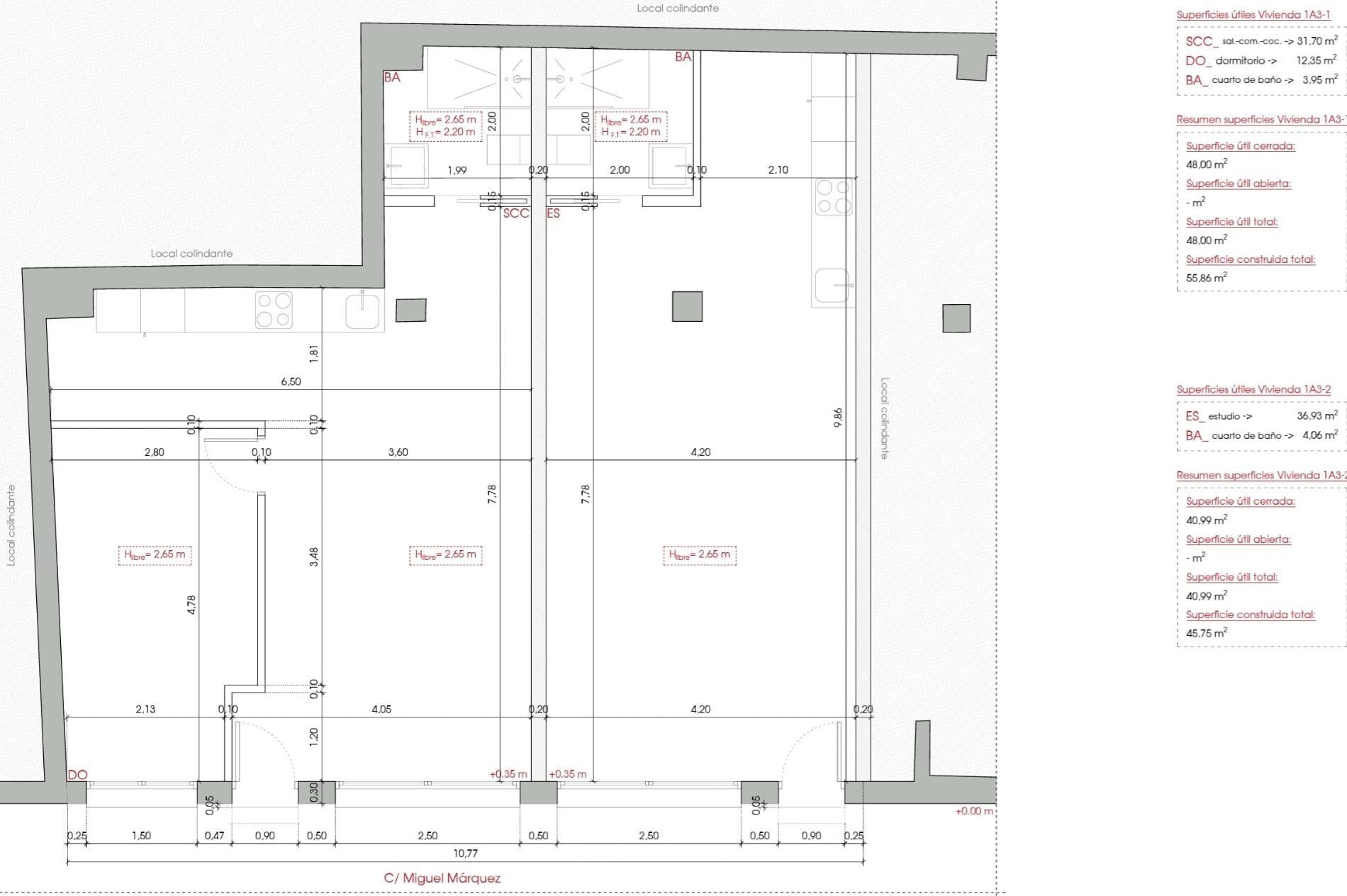
Local comercial de 102 m², actualmente diáfano, con proyecto en tramitación para cambio de uso y segregación ante el Ayuntamiento.
El proyecto contempla la creación de:
• 1 apartamento de 1 dormitorio
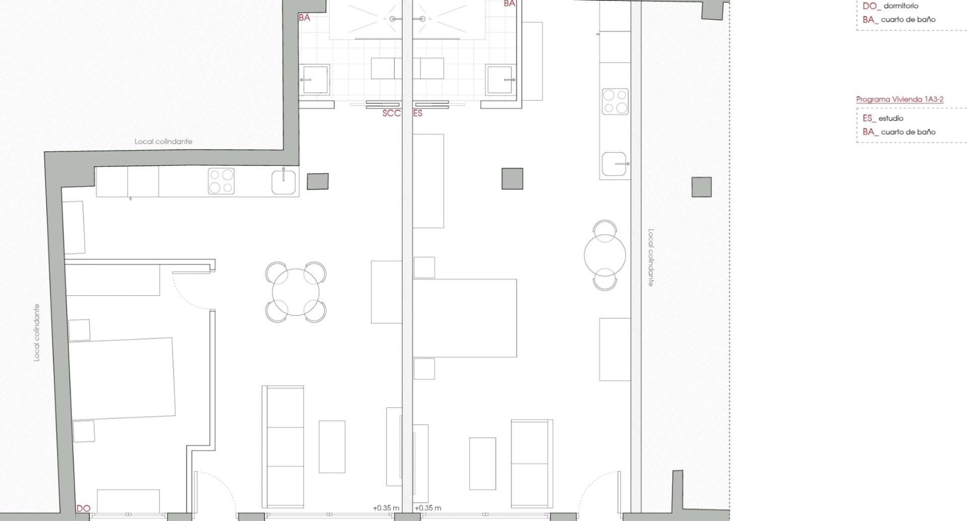
• 1 estudio independiente
Se incluyen en el anuncio:
📐 Plano del proyecto aprobado por arquitecto
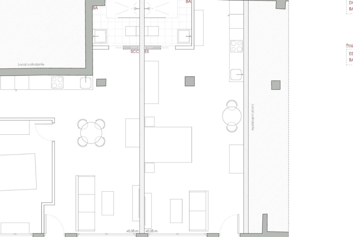
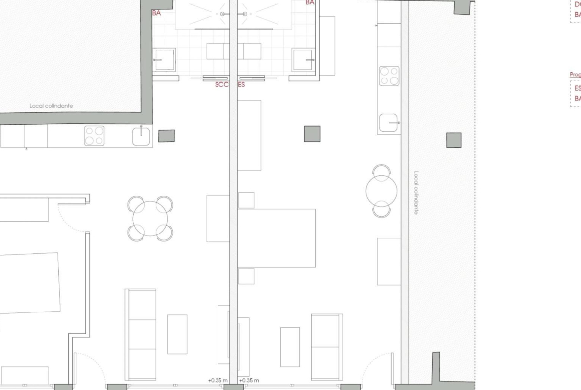
🖼️ Imágenes orientativas realizadas con IA que muestran el potencial y posible resultado final (renders no contractuales)
Una vez finalizada la transformación, el activo se convierte en una excelente opción para:
✔️ Alquiler de larga temporada
✔️ Alquiler de media estancia
✔️ Reventa individual de las unidades
✔️ Estrategia patrimonial con alta demanda en zona prime
Ubicación estratégica junto al mar, servicios, transporte y zona consolidada con fuerte demanda nacional e internacional.
Producto ideal para inversores que buscan crear valor desde el primer momento.
Para más información técnica y estudio de rentabilidad estimada, contáctanos.
El precio indicado no incluye impuestos ni gastos. Se aplicará ITP 7 %, además de notaría (aprox. 0,3 %–0,5 %) y Registro de la propiedad (aprox. 0,1 %–0,3 %) sobre el precio de venta. Los importes indicados tienen carácter meramente informativo y pueden variar según el caso concreto.
Para esta propiedad, los gastos aproximados serán de:
ITP: 27.650€
Notaría: Entre 1.185€ (0,3%) y 1.975€ (0,5%)
Registro de la propiedad: Entre 395€ (0,1%) y 1,185€ (0,3%)
La compraventa de este inmueble no conlleva honorarios de intermediación inmobiliaria para la parte compradora.
El local se vende sin mobiliario
Dirección
Abierto en Google Maps-
Dirección: de Miguel Márquez 2
-
Ciudad: Fuengirola
-
Estado/Municipio: MALAGA
-
Código postal: 29640
Detalles
Actualizado en abril 29, 2026 a 9:24 am-
ID de propiedad MLS3476-04193
-
Precio 395.000€
-
Tamaño de propiedad 105.0 m²
-
Cuarto 0
-
Baño 0
-
Garaje 0
-
Tipo Comercio
-
Estado de la propiedad Venta
- Re/max Coast













