PARCELA URBANA EN VENTA
- 805.000€
Descripción
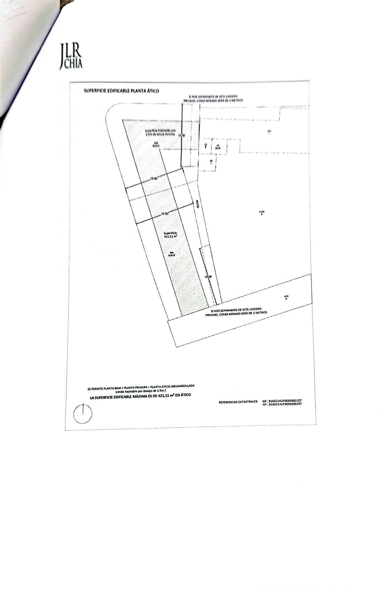
Se venden dos parcelas urbanas en Almáyate con una superficie total de 945 m², que se comercializan conjuntamente, representando una excelente oportunidad de inversión en una zona en pleno crecimiento del municipio de Vélez-Málaga.
Los terrenos cuentan con anteproyecto para la construcción de viviendas plurifamiliares, conforme a la normativa municipal vigente de Vélez-Málaga, clasificadas como Suelo Urbano CTP-1, lo que permite desarrollar un proyecto residencial con gran potencial de rentabilidad.
Ubicadas en un entorno tranquilo y bien comunicado, a pocos minutos de la playa y con fácil acceso a servicios, comercios y principales vías de comunicación, estas parcelas reúnen las condiciones ideales para promotores e inversores que buscan desarrollar una promoción residencial en la Costa del Sol.
El precio indicado no incluye impuestos ni gastos. A la compraventa se le aplicará el ITP del 7 %, además de los gastos de notaría (aprox. 0,3 %–0,5 %) y Registro de la Propiedad (aprox. 0,1 %–0,3 %) sobre el precio de venta.
Los importes indicados tienen carácter meramente informativo y pueden variar en función de cada caso concreto.
Para esta propiedad, los gastos aproximados serán:
ITP (7 %): 56.350 €
Notaría: entre 2.415 € (0,3 %) y 4.025 € (0,5 %)
Registro de la Propiedad: entre 805 € (0,1 %) y 2.415 € (0,3 %)
La compraventa de este inmueble no conlleva honorarios de intermediación inmobiliaria para la parte compradora.
Dirección
Abierto en Google Maps-
Dirección: Camelias 16b
-
Ciudad: Almayate
-
Estado/Municipio: MALAGA
-
Código postal: 29749
Detalles
Actualizado en marzo 15, 2026 a 2:42 am-
ID de propiedad MLS3476-04055
-
Precio 805.000€
-
Tamaño de propiedad 0.0 m²
-
Cuarto 0
-
Baño 0
-
Garaje 0
-
Tipo Finca/Solar
-
Estado de la propiedad Venta
- Re/max Coast









